联系我们
公司名称:海利晟(天津)科技股份有限公司
手机:王经理 18502638783
电话:022-84815321
传真:022-84957988转808
地址:天津市南开区长江道融侨中心23层
新闻资讯
您的当前位置:网站首页 > 新闻资讯
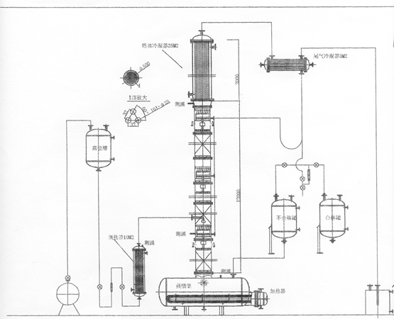
不锈钢蒸馏塔的工作原理和设计特点
时间:2020-08-04 点击次数:755
不锈钢蒸馏塔的设备多种多样,不锈钢蒸馏塔是蒸馏塔气液接触装置,有两种主要类型的塔和填料塔。板塔与填料塔的比较是一个复杂的问题。所涉及的因素有很多,材料的性能、运行条件、塔台设备的性能以及塔架在选型中都应考虑。
不锈钢蒸馏塔设备制造、安装、操作和维护蒸馏塔蒸馏原理是液体混合物部分的气化,利用具有不同特性的部件的挥发性,实现分离。塔釜为液体,塔顶仍在空气中,不锈钢蒸馏塔不局限于酒精的净化。蒸馏塔的功能主要是分离的混合液体,使用不同的液体在不同条件下,如温度、挥发性液体分离(沸点)不同的原则,从而达到净化效果,不锈钢板式塔和塔塔由隔膜,板柱很常见,其结构可分为板、再沸器、冷凝器三个部分。
从不锈钢蒸馏塔的塔顶到塔底,它的板塔与托盘一层之间是有垂直距离的,不锈钢蒸馏塔的蒸馏操作理论塔板数的多少通常用于描述塔的高度来确定板效率,理论塔板数,发现实际塔板数乘以板间距,板柱高度的身体,不锈钢塔热虹吸再沸器口底部连接到塔下一层板在一定距离。这段距离应该能够提供热虹吸式气体-液体混合物(一般气相质量分数为5%,但)气液分离,气相在平板和气相空间的下一层。
